Saigon-IT-Partner - Outsourcing Partner für hochwertige CAD Unterstützung - Umwandlungen von Papierzeichnungen u. Konstruktionarbeiten. Architekturvisualisierung interior und exterior.
Home 2D-Vektorisierung 3D-Vektorisierung Visualisierung Animation Kontakt Unternehmen Kundenvorteil english version
2D-VEKTORISIERUNG.
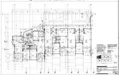
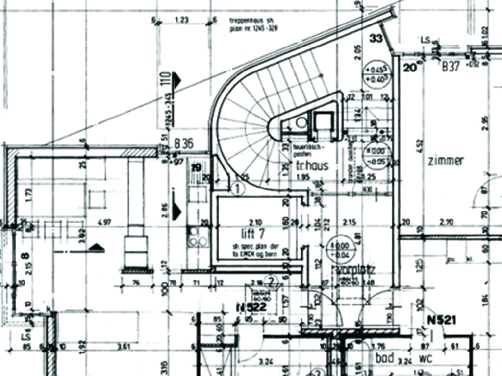
Beispiel einer Vektorisierung: links der Papierplan als Scann, rechts das Ergebnis als CAD-File.
Bitte in die Grafik zur Vergrösserung klicken. Beispiel einer 2D-Vektorisierung: Der Papierplan als Scannfile (Rastergrafik) Bitte in die Grafik zur Vergrösserung klicken. Beispiel einer 2D-Vektorisierung: Das Ergebnis als Vektorgrafik (CAD)
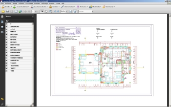
Auf Wunsch erstellen wir aus dem CAD-File ein PDF mit Ebenentechnik. Das ermöglicht ein schnelles betrachten in AcrobatReader, mit vorhandener Layerstruktur.

Bitte laden Sie unser Beispiel durch Klick in die Grafik:
Laden Sie das PDF Beispiel hier. PDF mit Ebenentechnik ermöglicht ein unkompliziertes betrachten im AcrobatReader
Basis-2D-Präzisionsvektorisierung
Ihre gescannten Papier-Pläne werden zu hochwertigen CAD-Plänen. Mit unserer Basis-Präzisionsvektorisierung erhalten Sie eine von uns vorgegebene Layerstruktur von 7 Layern (Beispiel für Architektur: Tragwand, Leichtwand, Beschriftung, Möblierung, Sanitäranlagen, Außenanlagen und Planrahmen). Danach erfolgt eine Texterkennung bis zu 95% mit einer abschließenden Qualitätskontrolle durch unsere AutoCAD-Zeichner.
Advanced-2D-Präzisionsvektorisierung
Bei der Advanced-Präzisionsvektorisierung steht Ihnen eine erweiterte Layerstruktur von bis zu 20 Layern zur Verfügung. Die Layerstruktur ist flexibel und kann dem Kundenwunsch entsprechend angepasst werden. Es erfolgt eine Plausibilitäts-Prüfung der Bemaßung, so dass vorhandene Falschmaße oder Unstimmigkeiten in der Bemassung erkannt werden und auf einem gesonderten Layer abgelegt werden. Die Texterkennung erfolgt durch deutschsprachige Mitarbeiter und liegt bei ca. 99%. Unsere Ingenieure verstehen den inhaltlichen Sachverhalt Ihrer Pläne. Die logische Erfassung des Zusammenhangs und die anschließende lagerichtige Umsetzung zu einem CAD-File ist somit gegeben. Vor der Freigabe durchläuft der fertige CAD-Plan eine abschließende Qualitätskontrolle durch unsere Ingenieure.
Premium-Plus-2D-Präzisionsvektorisierung
Die Premium-Plus-Präzisionsvektorisierung beinhaltet alle Servicedienstleistungen der Advanced-Präzisinsvektorisierung, zusätzlich können jedoch bei diesem Paket individuelle und kundenspezifische Anforderungen berücksichtigt werden. z.B. die Definition von speziellen Attributen um ein Import in ein CAFM-System zu ermöglichen oder die Erstellung eines Raumstempel als Raumpolygon mit Block- und Text-Attributen. Diese Anforderungen erarbeiten wir gemeinsam mit Ihnen. Auf Basis Ihrer Anforderungen wird dann der für Sie optimale Prozess definiert und implementiert.
 
 
Attraktive Preise
Hohe Qualitätssicherung
präzise Vektorisierung
Deutsches Management
Termingerechte Lieferung
 
ISO 9001 Qualität.
Saigon-IT-Partner hat nach erfolgreicher Überprüfung durch den TÜV-Süd alle Anforderungen der Qualitätsmanagementnorm DIN ISO 9001:2008 erfüllt und am 30.10.2009 das Zertifikat erhalten.
Zertifikat-Registrier-Nr. TUV100 01 1395
impressum | agb | home
Copyright © 2009 saigon-itp.com - All Rights Reserved.